【作ってみた①】CADで"あの文房具"をモデリング!
「設計やCADって、なんだか難しそう…」
「理系じゃないとできない仕事なのかな?」
クリエイティブな仕事に興味はあるけれど、専門的なツールへのハードルが高くて一歩踏み出せない。そんな風に思っている方はいませんか?
実は、CADの世界はみなさんが思っているよりもずっと身近で、そして何より「楽しい」ものなんです!
今回は、実際に当社で使用している3DCADソフト「SolidWorks(ソリッドワークス)」を使って、
みなさんのデスクにもきっとある「あの文房具」をモデリングしてみました。
「えっ、こんなに直感的に作れるの?」
そんな驚きとモノづくりの楽しさを、ぜひ感じてください!
使用するソフト「SolidWorks」とは?
今回使用するのは、機械設計の現場で国内外問わず圧倒的なシェアを誇る3DCADソフト、「SolidWorks」です。
シェアランキング1位と言われるだけあって、機能が充実しているのはもちろんですが、何より「操作が分かりやすい」のが特徴。
この操作感さえ覚えてしまえば、身の回りにある大抵のものはデジタル空間で再現できるようになりますよ。
本日の主役はこれ!「穴あけパンチ」
今回モデリングするのは、こちら。

「穴あけパンチ」です。
「いきなりこんな複雑そうな形を作るの!?」と思われた方も、もしかしたらいるかもしれません。
でも、大丈夫です。どんなに複雑に見える製品も、分解してみれば「単純な形の組み合わせ」でできているんです。
構造を分解して考えてみよう
モデリングを始める前に、まずはパンチがどんな部品で構成されているか見てみましょう。
- アーム部分 : 手で押すハンドル
- ピン・金具 : アームと土台を繋ぐ関節
- 土台 : 本体のベースとなる部分
- ケース : 底にある、ゴミを溜める取り外し可能なカバー
これらを一つひとつ部品(パーツ)として作成し、最後にプラモデルのように画面の中で組み立てる(アセンブリ)することで完成します。
こう考えると、少しハードルが下がってきませんか?
実践!まずは「ケース」を作ってみよう
それでは、どのような手順で作っていくのか、実際に見てみましょう!
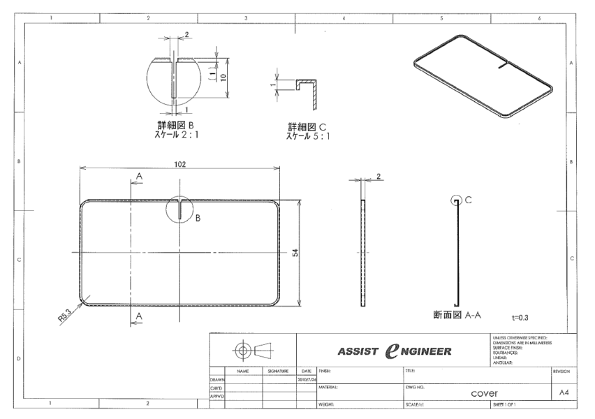
まずは、すべての基礎となる「ケース(底カバー)」の部分を作成していきます。

この図面をもとに、モデリングしていきます。
私がモデリングするときに意識していることは、「一度にすべてを作りきるのではなく、少しずつ形を作っていく」イメージを持つこと。
図面に書かれている寸法は大切な情報であり、逆に言えば図面に書かれている情報だけで、形状を作成することができます。
1. 形をスケッチする
まずは外形となる部分を作成していきます。
最初は「スケッチ」と呼ばれる、3D形状を作成するための下書きを作成します。
要は作りたい形の、線や輪郭を描く作業です。

スケッチでは長方形や円などのコマンドを選んで、簡単に形を描くことができます。

あくまでも適当に描いた線のため、ここで「寸法拘束」や「幾何拘束」を使用して、描いた線を固定していきます。
(※ 拘束とは・・・「この線はここと一致します」や「線の長さはこれくらいです」と決めてあげることです。)
2. 立体にする
スケッチが完成したら…
あとはもう、立体的にするだけです!


そして、ここから作りこむためのコマンドで、加工していきます。

- 角を丸くする「フィレット」
- 一定の厚みをつける「シェル」
- 一部分削るための「押し出し」
様々なコマンドを駆使しして完成させます。

コマンドさえ覚えてしまえば、3D形状を作るなんてあっという間です!
この調子でほかの部品たちも、作成します。

部品を組み立てよう(アセンブリ)
次は、それぞれ作った部品たちを組付けていきます。
この操作のことを「アセンブリ」と言います。
アセンブリには、大きく分けて2つの方法があります。
- 「ボトムアップ」・・・各部品を先に作成しておき、後から組付ける
- 「トップダウン」・・・部品を作成しながら組付けていく
今回は、先に部品を用意したので「ボトムアップ」になります。
作成した各部品を読み込んでいき、くっつけていくだけです。
(SolidWorksでは「合致」と言います。)

面同士の一致や、軸での一致など合致をかけたい要素を直接選択していきます。
アセンブリは、プラモデルのようなイメージで操作できるのが特徴ですね。
最後に色をつけて…完成です!

まとめ
こうして、身近な文房具が完成しました!
「設計」という言葉から受ける堅苦しいイメージとは裏腹に、やっていることは非常にシンプルです。
- 形を描く (スケッチ)
- 立体にする (厚みをつける)
- 組み合わせる (アセンブリ)
モデリングの流れや、コマンドさえ分かれば誰でも簡単に作ることができます。
まるでデジタルの世界でプラモデルを作っているような感覚で、楽しみながら製品を形にすることができるんです。
「面白そう!自分でもやってみたい」
「CADスキルを身につけて、手に職をつけたい」
CADを触ったことが無い人でも安心してください。
当社では、入社後の研修にてCADの使い方を、独自のテキストを利用してお伝えします。
そして、未経験からでもCADを学び、エンジニアとして活躍している社員がたくさんいます。
一見難しそうに見えることも、実際にやってみると意外と楽しいかもしれません。
ご興味のある方は、ぜひご応募お待ちしております。
あなたの「やってみたい」という気持ちを、私たちが全力でサポートします!
▼まずは話を聞いてみたい方はこちら
[エントリーページへ]
▼募集中の職種を見てみたい方はこちら
[求人検索ページへ]
執筆者:アシストエンジニアSNS担当
(監修協力:教育担当)
